Project Windmolenveld (Halle)
Locatie
Algemene informatie
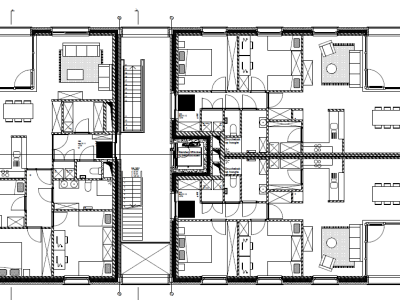
99 woningen & 1 kinderopvang
- Overzicht van type woningen:
- 6 Vlabinvest-koopwoningen
- 16 Vlabinvest-huurwoningen
- 15 huurwoningen met tuin
- 32 huurappartementen
- 10 aangepaste huurappartementen (waaronder 5 senioren op kot)
- 20 zorgwoningen i.s.m. De Okkernoot
Kinderopvang in samenwerking met de gemeente met plaats voor 14 minimum kinderen.
Technische informatie
- Ontwerper: KPW Architecten
- Aannemer:
- Ramingsbedrag: €24.018.120,39
- Conform aan de hedendaagse EPB-normering
- Start werken: voorjaar 2025 (afbraak)
- Einde van de werken: X
Infosessie
Op 6 juli 2020 organiseerden we de eerste infosessie rond het project Windmolenveld. Herbekijk hier de live streaming:
TIP: zet je geluid hard genoeg opdat je alles kan verstaan.
- Start video: 1.07
- Uitleg over de architectuur: 2.55
- Uitleg over de infrastructuur: 27.10
- Vragenronde: 38.30
Let op: de video dateert van 2020. Kijk voor de meest recente informatie naar de website zelf.
FAQ project Windmolendveld (Halle)
01. Wanneer beginnen de werken?
01. Wanneer beginnen de werken?Bestaande gebouwen worden eerst afgebroken voordat er gebouwd wordt. In het voorjaar van 2025 zullen de appartementen van Kopheiweg nummer 57 tot 79 (oneven nummers) worden afgebroken.
02. Welke gebouwen worden afgebroken?
02. Welke gebouwen worden afgebroken?De gebouwen in het rood op de foto worden afgebroken. Dit zijn een paar appartementsgebouwen en garages aan de Kopheiweg (6 rode blokken).
Verder wordt een woning aan de Lenniksesteenweg (zie onderaan) afgebroken om een nieuwe weg aan te leggen.
03. Wat wordt er eerst afgebroken?
03. Wat wordt er eerst afgebroken?Van de 6 rode blokken: het gebouw uiterst links. Dit zijn de huurders van Kopheiweg 57 tot 79 (oneven nummers). Deze huurders zijn ondertussen verhuisd.
Die afbraak moet eerst beginnen omwille van rioleringswerken. De overige blokken zullen worden afgebroken wanneer de nieuwbouw klaar is.
04. Wat wordt er gebouwd?
04. Wat wordt er gebouwd?De gebouwen in het blauw op de foto komen erbij. De lege vakjes stellen tuinen voor.
Op de plaats waar de appartementsgebouwen van de Kopheiweg werden afgebroken, gaat een tijdje niets staan.
Pas later zullen daar ook woningen gebouwd worden.
05. Gaat er veel overlast zijn door de werken?
05. Gaat er veel overlast zijn door de werken?Er zal altijd wat overlast zijn. We proberen deze klein te houden door het verkeer via een nieuw aangelegde weg te laten gaan.
We zullen de buurtbewoners ook informeren over onze aannemer. Zo kan je de aannemer direct laten weten of er problemen zijn.
06. Ik woon in de gebouwen die worden afgebroken. Ga ik naar de nieuwbouw verhuizen?
06. Ik woon in de gebouwen die worden afgebroken. Ga ik naar de nieuwbouw verhuizen?Ja, voor de meeste huurders zal dit zo zijn.
Uitzondering
De huurders van het gebouw uiterst links (Kopheiweg 57 tot 79) zullen al moeten verhuizen voordat de nieuwe appartementen klaar zijn. Zij verhuizen naar een andere woning in de wijk of in de buurt.
Indien zij nadien ook naar de nieuwbouw willen verhuizen, kunnen ze dit laten weten aan Woonpunt Zennevallei. Wij zullen zien wat haalbaar is, maar kunnen nu nog niets beloven.
07. Ga ik bij de nieuwe woningen dezelfde buren hebben?
07. Ga ik bij de nieuwe woningen dezelfde buren hebben?Dit kunnen wij op dit moment niet garanderen. Je kan wel laten weten aan Woonpunt Zennevallei wat je voorkeuren zijn. Opnieuw moeten we zien wat haalbaar is.
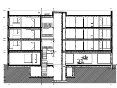
08. Is er een mogelijkheid om te parkeren bij de nieuwe gebouwen/woningen?
08. Is er een mogelijkheid om te parkeren bij de nieuwe gebouwen/woningen?Ja, zonder probleem. Zo’n 43 ondergrondse parkeerplaatsen en nog 33 bovengronds. Naast de auto wordt er ook extra ingezet op alternatieve vervoersmethoden dankzij het mobipunt.
Er zal bovendien een grote fietsenstalling komen die extra wordt beveiligd.
09. Komt er een winkel in het nieuwe project?
09. Komt er een winkel in het nieuwe project?We staan open voor het idee, maar hebben momenteel nog geen kandidaat gevonden.
10. Wordt er iets rond afval gedaan in het nieuwe project?
10. Wordt er iets rond afval gedaan in het nieuwe project?Er zal een "afvalstraat" komen. Hier kan je je vuilnis kwijt op een propere en legale manier. Je hoeft dus niet meer te wachten op de vuilniskar om je afval weg te doen.
11. Kan ik mij al inschrijven voor een huur- of koopwoning?
11. Kan ik mij al inschrijven voor een huur- of koopwoning?Huur
Je kan je niet specifiek inschrijven voor het project Windmolenveld, maar wel voor alle woningen binnen de gemeente Halle. Of je een woning van het project aangeboden krijgt, hangt af van het aantal kandidaten voor jou, jouw lokale binding en woonwensen.
Koop
Je kan je nog niet aanmelden voor het project. Je kan je wel al inschrijven als kandidaat-koper zijn voor een Vlabinvest-woning.